トップページ > 熊本市北区植木町舞尾 北区植木町舞尾モデル

北区植木町舞尾モデル

熊本市北区植木町舞尾

外観|完成しました!見学可能です♪

間取り

1階 16帖LDK。

ホーロー加工の幅2550のキッチン。お子様とお料理するにもゆとりがあります♪傷がつきにくいのも特徴♪

ホーロー加工された1616サイズの浴室。傷がつきにくく、汚れも落ちやすく、キレイが長続きします。

使いやすいシンプルなデザインの三面鏡洗面台。身支度時にうれしい機能性や収納力もしっかりと備えてます。

広々洗面脱衣室♪

多機能で使いやすく、お手入れしやすい工夫が詰まったトイレを採用。キレイを保て節電節水効果も有。

シューズクローク付き。靴はもちろん、ベビーカーや趣味の道具も収納できます♪

将来的には2部屋にできる11.3帖(6.8帖+4.5帖)のお部屋♪様々なライフスタイルに対応しています◎

2階 4.5帖洋室B。全居室オープンクローゼットを採用。圧迫感のない洋室。デットスペースがなく家具の配置がしやすいのも魅力です♪

2階 4.5帖洋室A。

2階 6.8帖主寝室。

1階にWIC完備。収納スペースに家族のものをまとめて収納可。ファミリークロークとして使えて便利。

2階ホール

玄関

前面道路を含む現地写真

  • 資料請求
  • 見学予約
  • お気に入りリストを見る
  • 物件情報を印刷する
  • プリンタの設定で「背景を印刷する」と設定しないと「背景画像」が印刷されないことがあります。印刷の際には、必ず「背景を印刷する」設定にしてください。

この物件の支払例

販売価格 2,498万円
月々支払 42,186 頭金無/2500万円借入/40年払/変動0.9%(R7.9)/ボーナス払119,300円×年2回
建物面積 102.67㎡(31.05坪)
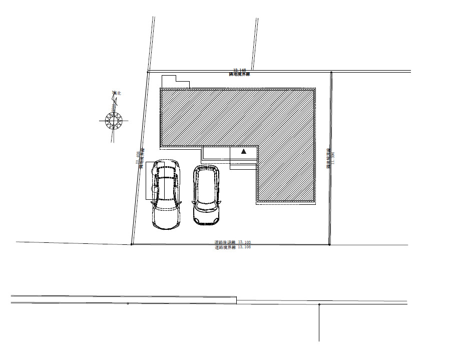
土地面積 144.21㎡(43.62坪)
  • 4SLDK
  • 2台駐車可能

1階に16帖のLDKとファミリークローゼット・シューズクロークを配置。 2階は、11.3帖の主寝室と4.5帖の洋室が2部屋。  ・全室フローリング設計♪  ・帰宅後の動線がラクラクな間取り♪  ・LDKは下がり天井+カップボードでカフェ風の雰囲気◎  ・水回りがまとまっており、家事動線がスムーズな間取りになっています♪  ・充実の標準仕様・設備もコミコミ価格の建売住宅です。    

この物件の詳細について、お気軽にお問い合わせください

  • 資料請求
  • 見学予約
  • お電話でのお問い合わせは

地図・交通

所在地 熊本市北区植木町舞尾1区画 507番12 北区植木町舞尾モデル
徒歩分数
バス停 舞尾橋 徒歩分数 7分
小学校校区 熊本市立 桜井小学校 中学校校区 熊本市立 鹿南中学校

※学校区は住所から自動判定したものであり、保証できる情報ではございません。正確な学校区はお問い合わせ下さい。

お問い合わせフォームはこちら

「人型アイコン」を地図上にドラッグすることで『Google Street View』に切り替わります。

※地図上の「対象地」は実際の場所ではない場合がございます。詳しくはお問い合わせください。

お問い合わせフォームはこちら

設備・仕様画像

  • ZEH水準の家♪制震ダンパー施工♪ 【省エネ性能】建物の省エネ性能:☆☆☆【目安光熱費】約15.5万円/年
  • 約4~5万時間長寿命のLED照明を全室に採用し、新生活を明るくしてくれます。交換の手間も削減。
  • 外気の熱を利用してお湯を沸かす電気給湯機(エコキュート)。光熱費削減やお手入れ簡単な機能付き。
  • 火やガスを使わずお年寄りやお子さんでも安心。お手入れも拭くだけ簡単です。火力もガスに劣りません。
  • Low-E加工の複層ガラスを採用。断熱効果が高まり快適性アップ。結露を抑えたり遮音にも効果的です。
  • 浴室暖房乾燥機。冬もヒートショック防止で快適に入浴でき、カビ発生防止や洗濯干場に活躍します。
  • 食器洗乾燥機。高水圧洗浄で汚れが取れ、除菌効果も。手荒れの緩和や家事の短縮などのメリットも。
  • シンプルなデザイン、見やすい大きな画面、簡単で使いやすいボタン操作のインターホンを採用しました。
  • 万が一の火災の警報をしっかり知らせてくれます。音質など聞き取りやすく改善されたものを採用しました。
  • 外部水栓・外部電源。ガーデニングや洗車、イルミネーション、電気自動車の充電、DIYなど多用途で活用。
  • 地震時の不同沈下(液状化)や湿気、シロアリ対策などにメリットをもつベタ基礎を採用しています。
  • 木造軸組み工法。剛床工法や集成材で耐久性を強化。土台にヒノキ材を使用し強度やシロアリ防止を期待。
  • 基礎パッキン。土台と基礎を絶縁し湿気を効率良く排出。半永久的な物性品質、優れた耐久性を発揮。
  • 太陽熱を反射しやすく、表面温度・屋内温度の上昇を軽減。耐熱性・耐久性があるデザイン性の高い屋根材。
  • シンプルな箱型形状で、軒先のラインとうまく調和し、色も外観デザインに合わせて家の外観美を守ります。
  • 台風などの飛来物から窓を守ったり、風の揺れの音も軽減。他にも防音、防犯、遮光・遮熱効果もあります。

周辺環境

  • 【保育園】ニチイキッズうえき保育園まで518m
  • 【幼稚園】植木中央幼稚園まで287m

物件概要

間取り 4SLDK 間取り内訳
土地面積 144.21㎡ 私道面積
建物面積 102.67㎡ 建物構造規模 木造 2階建
築年月(竣工月) 2025年04月 駐車場 空有 2台駐車スペースあり
建ぺい率/容積率 60%/160% 都市計画 市街化区域
接道状況 南13m 公道 接面4m    一方道路
地目 宅地
土地権利 所有権 地勢 平坦
用途地域 第一種中高層住居専用地域
現況 空家 取引態様 売主

取引条件等

引渡し 相談

その他

設備 下水道、IHクッキングヒーター、システムキッチン、追焚機能、洗髪洗面化粧台、床下収納、モニタ付インターホン、温水洗浄便座、カウンターキッチン、浴室乾燥機、食器洗浄乾燥機、照明器具、バス専用,トイレ専用,バス・トイレ別,シャワー,コンロ口数(三口),洗濯機置き場室内,バルコニー,フローリング,洗面所独立,シューズボックス,オートバス
特徴 オール電化、水道(公営),ガス(その他),セットバック無
諸条件・相談
情報登録日 2024年10月18日 情報更新予定日 2026年2月5日
物件番号 1179
建築確認番号 第ACS第240443号
  • 資料請求
  • 見学予約
  • お気に入りリストを見る
  • 物件情報を印刷する
  • プリンタの設定で「背景を印刷する」と設定しないと「背景画像」が印刷されないことがあります。印刷の際には、必ず「背景を印刷する」設定にしてください。

資料請求・見学予約フォーム

※ご注意ください※
「資料請求」を行う場合、お住まいのご住所を必ずご入力の上、お進みください。
「見学予約」を行う場合、ご連絡のつくお電話番号を必ずご入力の上、お進みください。
確認ができない場合、「資料請求」「見学予約」がお受けできない場合がございます。あらかじめご了承ください。

ご依頼内容
お名前 (全角)
ふりがな せい めい (ひらがな)
住所
郵便番号 (半角数字) 郵便番号を調べる
都道府県 市区町村
町域以下
※ご希望の物件情報や家づくりのお得な資料をお届けいたしますので、建物名・部屋番号までご記入ください。
見学希望日
見学希望時刻
電話番号 (半角数字)
メールアドレス
(半角英数字)
確認のため、もう一度メールアドレスをご記入下さい。
(半角英数字)
ご質問・ご検討内容等 (最大220文字まで)
個人情報の保護について
※当フォームのご利用にあたっては、「個人情報保護方針」にご同意いただく必要があります。ご同意いただける場合は、上記の「同意する」にチェックをつけたうえでご利用ください。

= """
  • お近くのモデルハウスを探す!建売情報はこちら
  • まずはお家でゆっくり知りたい!カタログ・資料請求
TOP