トップページ > 合志市豊岡 合志市豊岡11号地

合志市豊岡11号地

合志市豊岡

11号地 外観 ※2025年9月26日撮影

11号地 外観 ※2025年9月26日撮影

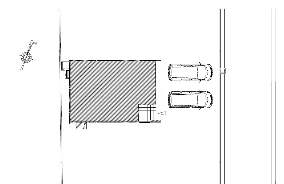
■11号地│間取り

【LDK】 リビング階段があれば、家族の日常を身近に感じながら、リアルタイムで家族の様子を見守ることができます。自然に家族と一緒に過ごすことができる快適な空間に実際に家具を配置してみました♪

【LDK】 1階17.1帖LDK。

【LDK】 17.1帖のLDKなので、ソファやダイニングテーブルを置いてもゆとりあるスペースです!

【LDK】

【LDK】

【キッチン】 ホーロー加工の幅2550のキッチン。お子様とお料理するにもゆとりがあります♪傷がつきにくいのも特徴♪

【キッチン】 油などの厄介な汚れも掃除しやすい工夫がされたキッチンです!さらに、食洗器も標準装備しておりますので、面倒な皿洗いも食洗器におまかせです☆

【キッチン】 カップボード付きのキッチン♪

【収納】 キッチン横のパントリー

【キッチン横の収納】

【リビングの階段下収納】

【収納】 玄関ホールと洗面脱衣室の両方から出入り出来るウォークインクローゼット。収納スペースに家族のものをまとめて収納可。ファミリークロークとして使えて便利♪

【収納】 玄関ホールと洗面脱衣室の両方から出入り出来るウォークインクローゼット。

【洗面脱衣室】 広い洗面脱衣室もポイントの一つです♪スタイリッシュな三面鏡洗面台も嬉しいですね♪

【洗面脱衣室】 洗面脱衣室の先はファミリークローゼット♪その先に玄関ホールがあります。生活動線を考えた間取りです♪

【浴室】 ホーロー加工された1616サイズの浴室。傷がつきにくく、汚れも落ちやすく、キレイが長続きします。金属の壁なのでマグネットアイテムで浮かせる収納♪

【トイレ】 多機能で使いやすく、お手入れしやすい工夫が詰まったトイレを採用。キレイを保て節電節水効果も有。

【2階ホール】

【寝室】 2階8.7帖主寝室。WICL付きで、夫婦それぞれの洋服をたっぷり収納できます。扉がないことで換気がしやすく、服に優しい環境が保てます。

【収納】 2階8.7帖主寝室のW.I.C。

【洋室】 2階4.5帖洋室×3部屋はオープンクローゼットを採用。圧迫感のない洋室。デットスペースがなく家具の配置がしやすいのも魅力です♪

【洋室】 2階 4.5帖洋室A

【バルコニー】 インナーバルコニー完備!ご家族全員分の洗濯物を干すのに十分な広さがあります。雨の日も洗濯物が濡れにくいのも嬉しいですね♪

【バルコニー】 インナーバルコニー完備!ご家族全員分の洗濯物を干すのに十分な広さがあります。雨の日も洗濯物が濡れにくいのも嬉しいですね♪

【玄関】 シューズボックス付き♪玄関ホール奥には収納あり♪

【玄関奥の収納】

【玄関】

  • 資料請求
  • 見学予約
  • お気に入りリストを見る
  • 物件情報を印刷する
  • プリンタの設定で「背景を印刷する」と設定しないと「背景画像」が印刷されないことがあります。印刷の際には、必ず「背景を印刷する」設定にしてください。

この物件の支払例

販売価格 3,797万円
月々支払 71,965 頭金無/3800万円借入/40年払/変動0.9%(R7.9)/ボーナス払134,212円×年2回
建物面積 109.71㎡(33.18坪)
土地面積 204.92㎡(61.98坪)
  • 4SLDK
  • 2台駐車可能

楓の森小・楓の森中学校まで徒歩約20分圏内♪ 【合志市豊岡エリア】にアイパッソの家が2棟誕生しました!!  

この物件の詳細について、お気軽にお問い合わせください

  • 資料請求
  • 見学予約
  • お電話でのお問い合わせは

地図・交通

所在地 合志市豊岡11号地 2000-2928 合志市豊岡11号地
熊本電気鉄道 御代志 徒歩分数 29分
バス停 下群 徒歩分数 7分
小学校校区 合志楓の森小学校 中学校校区 合志楓の森中学校

※学校区は住所から自動判定したものであり、保証できる情報ではございません。正確な学校区はお問い合わせ下さい。

お問い合わせフォームはこちら

「人型アイコン」を地図上にドラッグすることで『Google Street View』に切り替わります。

※地図上の「対象地」は実際の場所ではない場合がございます。詳しくはお問い合わせください。

お問い合わせフォームはこちら

設備・仕様画像

  • ■省エネ性能ラベル(ZEH水準) 【省エネ性能】建物の省エネ性能:☆☆☆【目安光熱費】約18.3万円/年
  • 約4~5万時間長寿命のLED照明を全室に採用し、新生活を明るくしてくれます。交換の手間も削減。
  • 外気の熱を利用してお湯を沸かす電気給湯機(エコキュート)。光熱費削減やお手入れ簡単な機能付き。
  • 火やガスを使わずお年寄りやお子さんでも安心。お手入れも拭くだけ簡単です。火力もガスに劣りません。
  • Low-E加工の複層ガラスを採用。断熱効果が高まり快適性アップ。結露を抑えたり遮音にも効果的です。
  • 浴室暖房乾燥機。冬もヒートショック防止で快適に入浴でき、カビ発生防止や洗濯干場に活躍します。
  • 食器洗乾燥機。高水圧洗浄で汚れが取れ、除菌効果も。手荒れの緩和や家事の短縮などのメリットも。
  • シンプルなデザイン、見やすい大きな画面、簡単で使いやすいボタン操作のインターホンを採用しました。
  • 万が一の火災の警報をしっかり知らせてくれます。音質など聞き取りやすく改善されたものを採用しました。
  • 外部水栓・外部電源。ガーデニングや洗車、イルミネーション、電気自動車の充電、DIYなど多用途で活用。
  • 地震時の不同沈下(液状化)や湿気、シロアリ対策などにメリットをもつベタ基礎を採用しています。
  • 木造軸組み工法。剛床工法や集成材で耐久性を強化。土台にヒノキ材を使用し強度やシロアリ防止を期待。
  • 基礎パッキン。土台と基礎を絶縁し湿気を効率良く排出。半永久的な物性品質、優れた耐久性を発揮。
  • 太陽熱を反射しやすく、表面温度・屋内温度の上昇を軽減。耐熱性・耐久性があるデザイン性の高い屋根材。
  • シンプルな箱型形状で、軒先のラインとうまく調和し、色も外観デザインに合わせて家の外観美を守ります。
  • 台風などの飛来物から窓を守ったり、風の揺れの音も軽減。他にも防音、防犯、遮光・遮熱効果もあります。

周辺環境

  • 【小学校】合志楓の森小学校まで1545m
  • 【中学校】合志楓の森中学校まで1545m
  • 【スーパー】マックスバリュ 永江団地店まで1986m
  • 【駅】御代志まで2398m

物件概要

間取り 4SLDK 間取り内訳
土地面積 204.92㎡ 私道面積
建物面積 109.71㎡ 建物構造規模 木造 2階建
築年月(竣工月) 2025年07月 駐車場 空有 2台駐車スペースあり
建ぺい率/容積率 70%/200% 都市計画 市街化調整区域
接道状況 北東11m 公道 接面6m    一方道路
地目 宅地
土地権利 所有権 地勢 平坦
用途地域 無指定
現況 空家 取引態様 売主

取引条件等

引渡し 相談

その他

設備 下水道、IHクッキングヒーター、システムキッチン、追焚機能、洗髪洗面化粧台、床下収納、モニタ付インターホン、温水洗浄便座、カウンターキッチン、浴室乾燥機、食器洗浄乾燥機、照明器具、バス専用,トイレ専用,バス・トイレ別,シャワー,コンロ口数(三口),洗濯機置き場室内,バルコニー,フローリング,洗面所独立,シューズボックス,オートバス
特徴 オール電化、水道(公営),セットバック無
諸条件・相談
情報登録日 2025年2月23日 情報更新予定日 2026年1月23日
物件番号 1452
建築確認番号 第ACS第240564号
  • 資料請求
  • 見学予約
  • お気に入りリストを見る
  • 物件情報を印刷する
  • プリンタの設定で「背景を印刷する」と設定しないと「背景画像」が印刷されないことがあります。印刷の際には、必ず「背景を印刷する」設定にしてください。

資料請求・見学予約フォーム

※ご注意ください※
「資料請求」を行う場合、お住まいのご住所を必ずご入力の上、お進みください。
「見学予約」を行う場合、ご連絡のつくお電話番号を必ずご入力の上、お進みください。
確認ができない場合、「資料請求」「見学予約」がお受けできない場合がございます。あらかじめご了承ください。

ご依頼内容
お名前 (全角)
ふりがな せい めい (ひらがな)
住所
郵便番号 (半角数字) 郵便番号を調べる
都道府県 市区町村
町域以下
※ご希望の物件情報や家づくりのお得な資料をお届けいたしますので、建物名・部屋番号までご記入ください。
見学希望日
見学希望時刻
電話番号 (半角数字)
メールアドレス
(半角英数字)
確認のため、もう一度メールアドレスをご記入下さい。
(半角英数字)
ご質問・ご検討内容等 (最大220文字まで)
個人情報の保護について
※当フォームのご利用にあたっては、「個人情報保護方針」にご同意いただく必要があります。ご同意いただける場合は、上記の「同意する」にチェックをつけたうえでご利用ください。

  • お近くのモデルハウスを探す!建売情報はこちら
  • まずはお家でゆっくり知りたい!カタログ・資料請求
TOP