【外観】完成イメージ
【外観】完成イメージ 駐車は並列2台可能です!
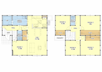
【間取図】32坪 5LDK
【1階 15.7帖LDK】※同仕様写真。 キッチンにはパントリーあり♪パントリーは、小物が多いキッチンに最適!扉付きで転倒防止になり、すっきり隠せます。
【洋室】※同仕様写真。 LDK横4.5帖洋室は、お子さまの遊び場やお昼寝スペースにぴったり! リビングから目が届くので家事をしながらでも安心♪引き戸を開ければリビングとつなげて広く使うこともできます◎
【キッチン】※同仕様写真。 ホーロー加工のキッチン。お子様とお料理するにもゆとりがあります♪傷がつきにくいのも特徴♪
【洗面化粧台】※同仕様写真。陶器製の洗面ボウルはシャープさと柔らかさをあわせもつデザイン。収納付の化粧鏡はぬくもりを感じる木目調。収納キャビネットはカウンター下のスペースを無駄なく活用できます。
【浴室】※同仕様写真。 ホーロー加工された1616サイズの浴室。傷がつきにくく、汚れも落ちやすく、キレイが長続きします。金属の壁なのでマグネットアイテムで浮かせる収納♪
【トイレ】※同仕様写真。 多機能で使いやすく、お手入れしやすい工夫が詰まったトイレを採用。キレイを保て節電節水効果も有。
【寝室】※同仕様写真。 2階3部屋はオープンクローゼットを採用。圧迫感のない洋室。デットスペースがなく家具の配置がしやすいのも魅力です♪
【配置】分譲地の配置イメージです。











